Au coeur du centre ville de FOURAS,
Dans une petite copropriété de 3 logements,
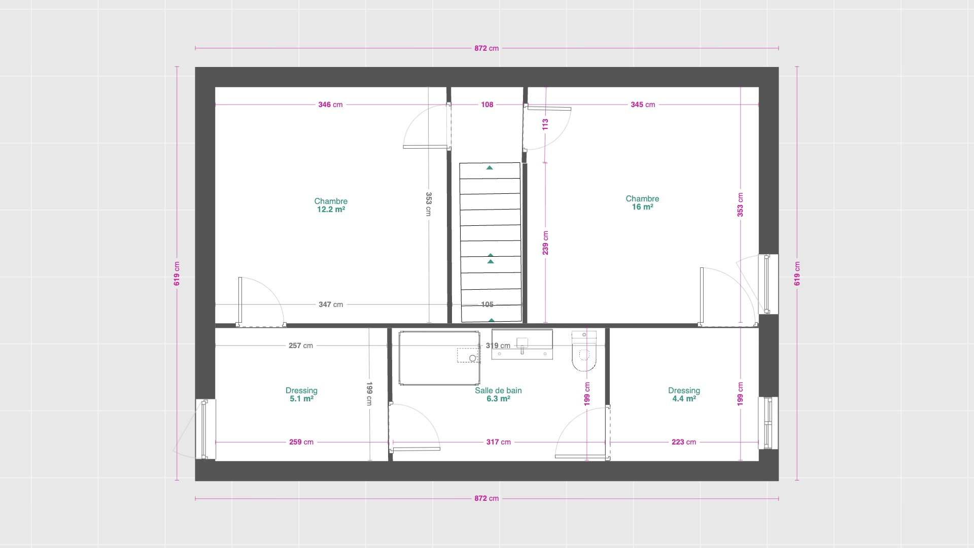
Maison d’une surface habitable de 70m2 environ, à étage, comprenant :
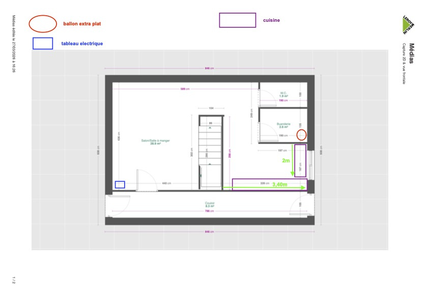
– Au rez-de-chaussée : un salon séjour avec une cuisine aménagée ouverte, une buanderie, WC séparés.
– À l’étage : 2 chambres avec chacune son dressing, une salle de bains avec Wc.
Grande cave privative.
Disponible en octobre 2026.
2 autres logements disponibles à la vente également.
Les informations sur les risques auxquels ce bien est exposé sont disponibles sur le site Géorisques : www.georisques.gouv.fr
| 70 m² habitable | |
| 3 pièces | 2 chambres |
| Cuisine : Americaine -Equipee | 1 WC |
| Salle d'eau : - | 1 Salle de bain |
| Type de chauffage : PANNEAUX RAYONNANT | Energie : ELECTRIQUE |
| Chauffage : INDIVIDUEL | Exposition : - |
DPE
177 kWh ep/m2 an
GES
7 kWh ep/m2 an
Honoraires à charge de l'acquéreur : 13000€, soit 5.00% du prix de vente





